PETER
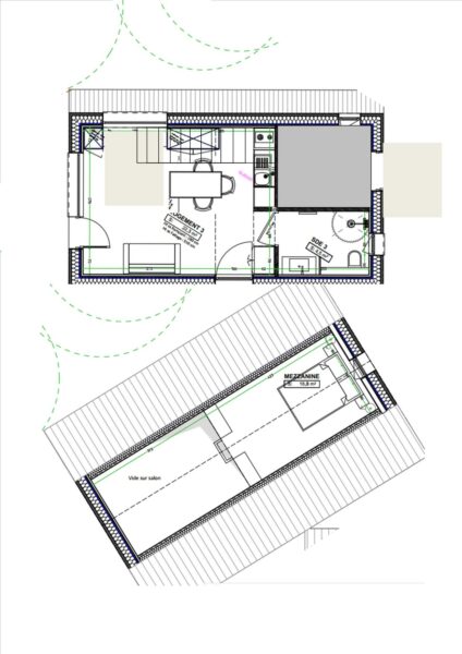
La maison d’hôtes construite en bois et d’une surface de 32 m² est très lumineuse (exposition Sud et Ouest).
Elle donne sur un jardin clos arboré de 65 m². La terrasse de 20 m² est orientée Sud (table de jardin, parasol, transats).
Au rez-de-chaussée :
Pièce de vie accessible PMR avec baie vitrée donnant sur le jardin clos.
Cuisine à l’américaine équipée : plaques de cuisson, réfrigérateur, four…
Salle d’eau avec douche italienne et WC.
Internet par Wifi.
Couchage :
4 personnes : un canapé-lit de 140 dans le séjour ; un lit de 140 en mezzanine.
En commun :
Lave-linge, barbecue.
Accès des voyageurs :
L’adresse exacte est le 1 bis route de Moustérian.
L’ensemble de la maison d’hôtes est accessible, à l’exception du spa. Accès PMR exceptée la mezzanine.
Prêt possible de matériel bébé (lit, chaise haute).
Linge de lit et de toilette non compris (location possible sur demande).
Ménage sur demande (en supplément).
Tarifs :
Location à la semaine du samedi au samedi (ou 3 jours minimum).
70 € / jour ; 450 € / semaine. Arrhes : 30%. Solde à l’entrée dans les lieux. Chèque de caution (450 euros).
Conditions de l’hébergement :
Heure d’arrivée : 16h. Heure de départ : 10h.
Animaux acceptés : Non
Non-fumeur
N° d’enregistrement : 562430000785D








Description
Maison d'hôtes avec mezzanine
Adresse
1 Route de Mousterian
Séné
France
Détails
Capacité des hébergements : 2-4